logo

Crowdly

Browser

Add to Chrome

24/25–2–денна– Організація контролю та оцінка стану колії – Потапов Д.О

Looking for 24/25–2–денна– Організація контролю та оцінка стану колії – Потапов Д.О test answers and solutions? Browse our comprehensive collection of verified answers for 24/25–2–денна– Організація контролю та оцінка стану колії – Потапов Д.О at do.kart.edu.ua.

Get instant access to accurate answers and detailed explanations for your course questions. Our community-driven platform helps students succeed!

На якій відстані нижче від поверхні кочення проводиться вимірювання ширини колії вагоном колієвимірювачем ЦНИИ-2?

0%
0%
0%
0%
View this question

Скільки нараховується штрафних балів за перекіс V ступеню з величиною 60 мм при відстані між вершинами піків 15 метрів?

50%
50%
0%
0%
View this question

До якого ступеня відносяться відступи, за наявності яких погіршується плавність руху при встановлених швидкостях, що призводить до інтенсивного накопичення залишкових деформацій в конструкції колії?

0%
0%
0%
0%
View this question

Відступи якого ступеня повинні усуватись у першу чергу – не пізніше 3-х діб після їх виявлення в колії?

0%
0%
0%
100%
View this question

Яким чином нараховуються штрафні бали в разі наявності в колії плавних відхилень за рівнем?

0%
0%
0%
0%
View this question

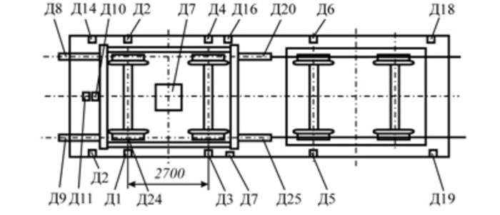
Користуючись рисунком, визначте яке позначення мають датчики лінійних переміщень механізма вимірювання ширини колії на вагоні КВЛ.

0%
50%
0%
50%
View this question

Чому дорівнює величина повздовжнього масштабу записів усіх параметрів колії на стрічці вагона-колієвимірювача ЦНИИ-2?

50%
0%
50%
0%
View this question

Яка повинна бути встановлена швидкість руху у випадку наявності в колії осідання (просадки) величиною 35 мм.

0%
0%
0%
0%
View this question

Якій величині дорівнює IV ступінь відхилення по звуженню рейкової колії при нормі її утримання 1520мм?

0%
0%
0%
0%
View this question

Скільки нараховується штрафних балів за перекіс ІV ступеню з величиною 20 мм при відстані між вершинами піків 10 метрів?

0%
50%
0%
50%
View this question

Want instant access to all verified answers on do.kart.edu.ua?

Get Unlimited Answers To Exam Questions - Install Crowdly Extension Now!

Browser

Add to Chrome