logo

Crowdly

Browser

Add to Chrome

Theoretical and Structural Mechanics: Structural Mechanics. P1 ☑️

Looking for Theoretical and Structural Mechanics: Structural Mechanics. P1 ☑️ test answers and solutions? Browse our comprehensive collection of verified answers for Theoretical and Structural Mechanics: Structural Mechanics. P1 ☑️ at elearn.nubip.edu.ua.

Get instant access to accurate answers and detailed explanations for your course questions. Our community-driven platform helps students succeed!

What is structure named as beam?

View this question

If the Chebyshov's fofmula has 0, it means that

0%
0%
0%
0%
View this question

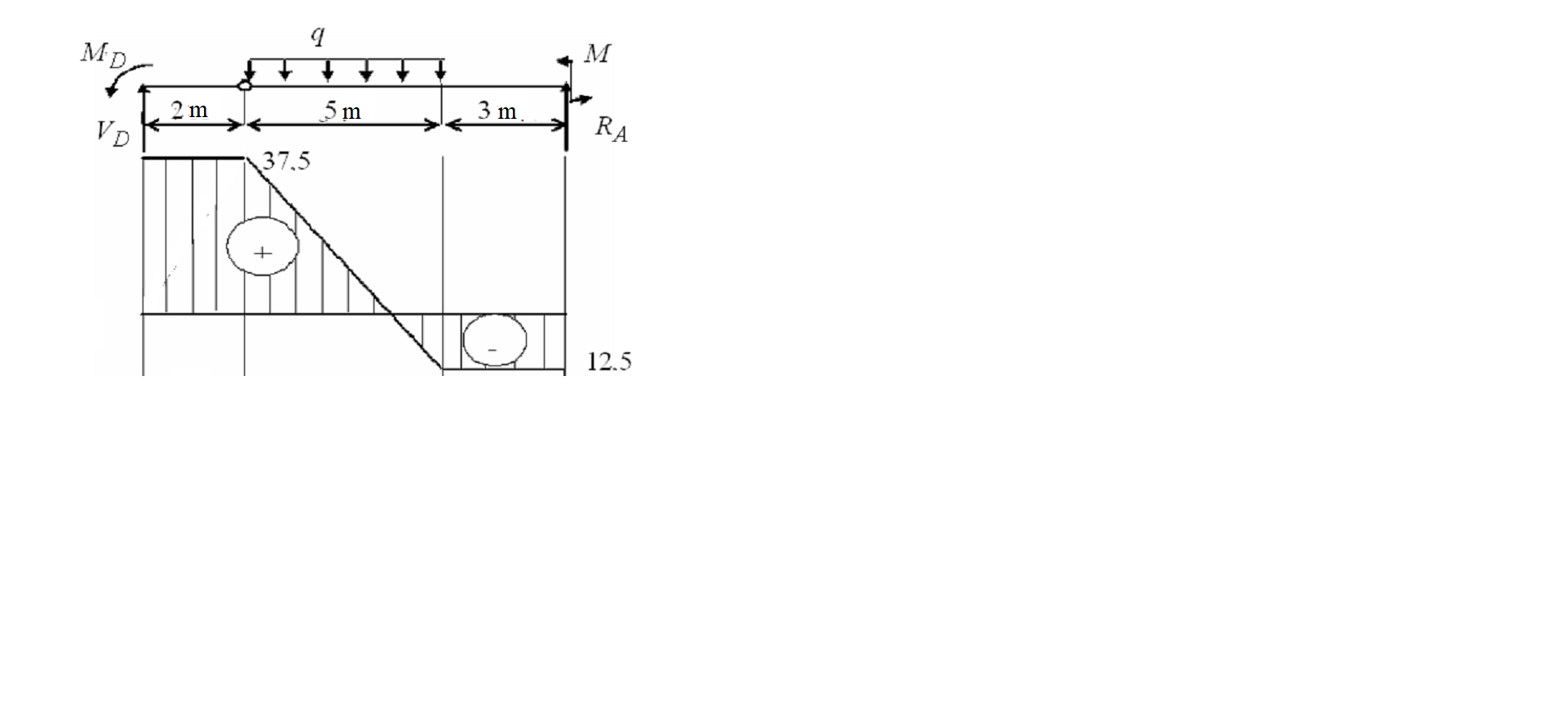
This is a diagram of bend momet for given beam.

100%
0%
View this question

In general case the Chebyshov's fofmula has a form:

0%
0%
0%
0%
View this question

The node has

0%
0%
100%
0%
View this question

How do we can take into account the impact of a moving load on calculation of structure in construction mechanics?

View this question

The simple disk has

0%
0%
0%
100%
View this question

The hinge has

100%
0%
0%
0%
View this question

What the method of connection absent?

0%
0%
0%
100%
View this question

The soldering has two reactions.

0%
0%
View this question

Want instant access to all verified answers on elearn.nubip.edu.ua?

Get Unlimited Answers To Exam Questions - Install Crowdly Extension Now!

Browser

Add to Chrome