logo

Crowdly

Browser

Add to Chrome

Prüfung Baukonstruktion 2 / Brandschutzkonzepte SoSe 2024/25

Looking for Prüfung Baukonstruktion 2 / Brandschutzkonzepte SoSe 2024/25 test answers and solutions? Browse our comprehensive collection of verified answers for Prüfung Baukonstruktion 2 / Brandschutzkonzepte SoSe 2024/25 at moodle2.hs-magdeburg.de.

Get instant access to accurate answers and detailed explanations for your course questions. Our community-driven platform helps students succeed!

Welche Öffnungsrichtung gemäß DIN 107 hat diese, im Grundriss dargestellte Tür?

0%
0%
View this question

Bei Türbauteilen werden verschiedene Rahmenbauarten unterschieden. Welcher Rahmentyp ist hier abgebildet?

0%
100%
0%
0%
0%
View this question

Um welchen Estrich handelt es sich?

0%
0%
0%
0%
0%
View this question

Welche Forderungen bezüglich der Rettungswege stellt die Musterbauordnung (MBO) an uns Planer?

0%
0%
0%
0%
0%
View this question

Welches Bauteil ist hier (orange) hervorgehoben?

0%
0%
0%
0%
0%
View this question

Weshalb wird bei Fassadensystemen zwischen Fix- und Gleitpunkt unterschieden?

100%
0%
0%
0%
100%
View this question

Welche Kräfte gehören zu den sogenannten Zwangskräften?

0%
0%
0%
0%
0%
View this question

Wie ist ein Treppenlauf definiert?

Ein Treppenlauf ...

0%
0%
0%
0%
0%
View this question

In welche Richtung wird hier in der Regel Wärmeenergie fließen?

100%
0%
0%
0%
0%
View this question

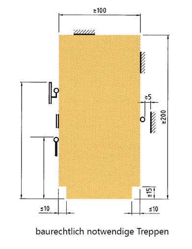
Welche maßliche Anforderung gemäß DIN 18065 ist hier abgebildet?

0%
0%
0%
0%
0%
View this question

Want instant access to all verified answers on moodle2.hs-magdeburg.de?

Get Unlimited Answers To Exam Questions - Install Crowdly Extension Now!

Browser

Add to Chrome