logo

Crowdly

Browser

Add to Chrome

BTSM-BB-1-WS2025 - Grundlagen Technik - 88605 - Roland Schuster

Looking for BTSM-BB-1-WS2025 - Grundlagen Technik - 88605 - Roland Schuster test answers and solutions? Browse our comprehensive collection of verified answers for BTSM-BB-1-WS2025 - Grundlagen Technik - 88605 - Roland Schuster at moodle.fh-vie.ac.at.

Get instant access to accurate answers and detailed explanations for your course questions. Our community-driven platform helps students succeed!

Gegeben: F4x=48kN; F4y=63kN / Gesucht: F4 in [kN]

Rechnen Sie bitte mit 2 Nachkommastellen und wählen Sie die passende Einheit.

View this question

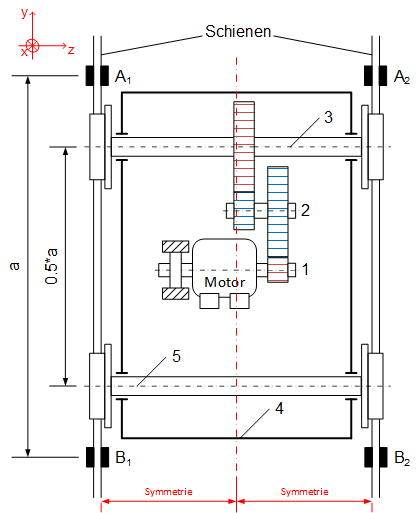
Legende Greiferlaufkatze (Draufsicht):

  • 1...Motorwelle
  • 2...Zwischenräder
  • 3...Antriebswelle des Getriebeblocks
  • 4...Getriebegehäuse
  • 5...Achse des Getriebeblocks

Annahmen

Die Masse mgetr=4,6[kg] des Getriebeblocks inklusive Motor und Gehäuse verteilt sich auf die Antriebswelle zu 70% und auf die Achse des Getriebeblocks zu 30%. Vereinfachend wird dabei angenommen, dass die Belastung auf beide Schienen gleich verteilt ist (Symmetrie entlang der y-Achse). Die Masse eines Rades mRad=6,9 [kg]. Die Masse der Achse mAch=3,9 [kg]. Die Masse der Welle mWel=8,6 [kg]. Annäherung: g=9,81m/s2.

A1, A2 sind jeweils mit der Schiene fix verschweißte Stützen. B1, B2 sind lose Stützen die lediglich senkrechte Kräfte aufnehmen können.

Modellieren Sie das Problem als Träger auf zwei Stützen und eruieren Sie die Auflagerkraft FA1x in [N] rechnerisch. Der Abstand a=2,9 [cm]. Der Wagen befindet sich in der Mitte zwischen den Stützen A1,2 und B1,2 und ist im Stillstand. Das Ergebnis ist mit zwei Nachkommastellen anzugeben.

View this question

Gegeben: F1=51kN; alpha1=3,49rad / Gesucht: F1y in [kN]

Rechnen Sie bitte mit 2 Nachkommastellen und wählen Sie die passende Einheit.

View this question

Gegeben: alpha=5,84rad Gesucht: alpha in [Grad]

Wieviel Grad (°) entspricht der gegebene Winkel alpha in Radiant (rad)?

  • Bitte geben Sie die Antwort mit einer Nachkommastelle an ohne dabei auf- bzw. abzurunden.

View this question
View this question
View this question
View this question
View this question
View this question
View this question

Want instant access to all verified answers on moodle.fh-vie.ac.at?

Get Unlimited Answers To Exam Questions - Install Crowdly Extension Now!

Browser

Add to Chrome