logo

Crowdly

Browser

Add to Chrome

Hőtan (GKNB_FKTM040)

Looking for Hőtan (GKNB_FKTM040) test answers and solutions? Browse our comprehensive collection of verified answers for Hőtan (GKNB_FKTM040) at szelearning.sze.hu.

Get instant access to accurate answers and detailed explanations for your course questions. Our community-driven platform helps students succeed!

Egy teli pohár csapvíz alján a nyomás p. A vizet kiöntjük, és a poharat tengervízzel töltjük meg. Mekkora a lesz a nyomás a pohár alján? (A tengervíz sűrűsége kissé nagyobb a csapvíz sűrűségénél.)

View this question

Az alábbi összefüggések közül melyik IGAZ? (ahol a gázok fajhőjét jelöli)

View this question

Az alábbi állítások közül melyek HAMISAK?

0%
0%
0%
0%
View this question

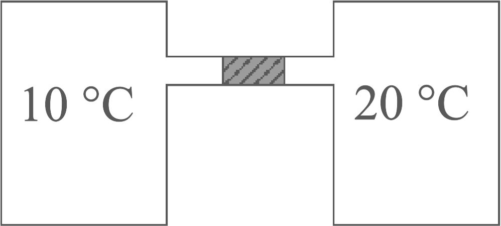
Két, tökéletesen azonos méretű tartályt vékony, vízszintes cső köt össze az ábrának megfelelően. A cső közepén könnyen mozgó higanycsepp helyezkedik el. A bal oldali tartályban 10°C‑os, a jobb oldali tartályban 20°C-os levegő van. Kezdetben a higanycsepp nyugalomban van. Hogyan változik a higanycsepp helyzete, ha a levegő hőmérsékletét mindkét oldalon ugyanannyival emeljük meg?

View this question

Mely állítások HAMISAK az alábbiak közül?

Több válasz is lehetséges.

0%
0%
0%
0%
0%
View this question

Mekkora a hatásfoka annak a hőerőgépnek, amely minden egyes ciklusban 300 J hőt vesz fel és 180 J hőt ad le?

0%
0%
0%
0%
View this question

Ideális gázt tartalmazó hengert egy dugattyú zár le. A gázt eredeti térfogatának kétszeresére engedjük tágulni először izobár módon, majd pedig, az eredeti kezdőállapotból kiindulva, izoterm módon. Melyik esetben lesz nagyobb a gáz végső hőmérséklete?

0%
0%
0%
View this question

Milyen folyamatot ábrázol a mellékelt V-p diagramon feltüntetett nyíl?

View this question

Az alábbi állítások közül válassza ki az IGAZAKAT!

Több válaszlehetőség is lehetséges. 

0%
0%
0%
0%
View this question

Az ábrán egy ideális gáz körfolyamata látható. A gáz kezdetben az "A"‑val jelölt, legnagyobb nyomású állapotban volt. Az állapotváltozások a nyílnak megfelelő irányban zajlottak. Mit mondhatunk a gáz egy teljes periódus alatti hőfelvételéről?

0%
0%
0%
View this question

Want instant access to all verified answers on szelearning.sze.hu?

Get Unlimited Answers To Exam Questions - Install Crowdly Extension Now!

Browser

Add to Chrome