logo

Crowdly

Browser

Add to Chrome

Відновлення штучних будов

Looking for Відновлення штучних будов test answers and solutions? Browse our comprehensive collection of verified answers for Відновлення штучних будов at dl.kfk.sumdu.edu.ua.

Get instant access to accurate answers and detailed explanations for your course questions. Our community-driven platform helps students succeed!

Для перешкодження зсуву окремих поперечин уздовж мосту використовують....

100%
100%
100%
0%
100%
View this question

Якщо у п'ятипрогонового моста зруйнована опора, то має місце.......

0%
0%
0%
View this question

Після забивання верхній кінець палі зрізується.....

View this question

Тунелі відновлюються ......

0%
0%
0%
View this question

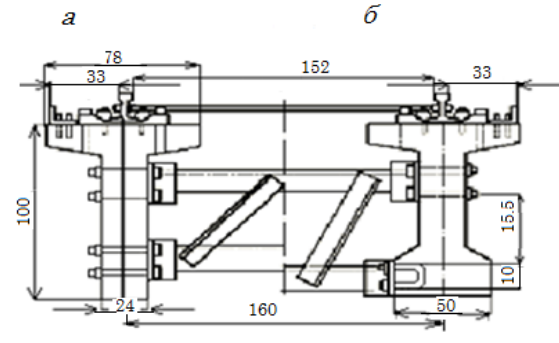
Поперечний переріз якої прогонової будови вказаний на кресленні?

0%
0%
0%
0%
0%
0%
0%
0%
View this question

Палю, складену з двох об’єднаних колод, називають....

0%
0%
0%
0%
0%
View this question

Якою є нормальна довжина поперечин з брусів і колод для улаштування мостового полотна тимчасових мостів?

0%
0%
0%
50%
View this question

Тимчасове відновлення тунелів робиться на....

0%
100%
0%
View this question

Поперечний переріз якої прогонової будови вказаний на кресленні?

0%
0%
0%
0%
0%
0%
0%
0%
View this question

Просторові конструкції льодорізів називають ....

View this question

Want instant access to all verified answers on dl.kfk.sumdu.edu.ua?

Get Unlimited Answers To Exam Questions - Install Crowdly Extension Now!

Browser

Add to Chrome