logo

Crowdly

Browser

Add to Chrome

BTSM-BB-1-WS2025 - Grundlagen Technik - 88605 - Roland Schuster

Looking for BTSM-BB-1-WS2025 - Grundlagen Technik - 88605 - Roland Schuster test answers and solutions? Browse our comprehensive collection of verified answers for BTSM-BB-1-WS2025 - Grundlagen Technik - 88605 - Roland Schuster at moodle.fh-vie.ac.at.

Get instant access to accurate answers and detailed explanations for your course questions. Our community-driven platform helps students succeed!

Gegeben: F1=50kN; F2=19kN; F3=13kN; F4=32kN; alpha=4,78rad; beta=5,99rad; gamma=1,82rad; delta=3,63rad / Gesucht: Der Winkel alpha_Res in [rad] der resultierenden Kraft FR von der positiven x-Achse aus gemessen.

  • Rechnen Sie bitte mit 2 Nachkommastellen und wählen Sie die passende Einheit.
  • Negative Ergebnisse sind möglich.

View this question

Gegeben: F1=78kN; F2=34kN; F3=54kN; F4=16kN; alpha=5,43rad; beta=1,1rad; gamma=3,87rad; delta=1,08rad / Gesucht: FR in [kN]

  • Rechnen Sie bitte mit 2 Nachkommastellen und wählen Sie die passende Einheit.

View this question

Hinweis: Steger / Sieghart / Glauninger, 4.  Aufl. 2009, Technische Mechanik 1, Seite 38

Gegeben: Ein Balken auf zwei Stützen (Krag- oder Freiträger) ist durch die Kräfte F1=635N und F2=217N belastet. a=193mm; b=167,5mm; l=732mm

Gesucht: Auflagerkraft FB in [N]

  • Rechnen Sie bitte mit 2 Nachkommastellen und wählen Sie die passende Einheit.
  • Beachten Sie die in rot markierten positiven Achsrichtungen bzw. die positive Drehrichtung.

View this question

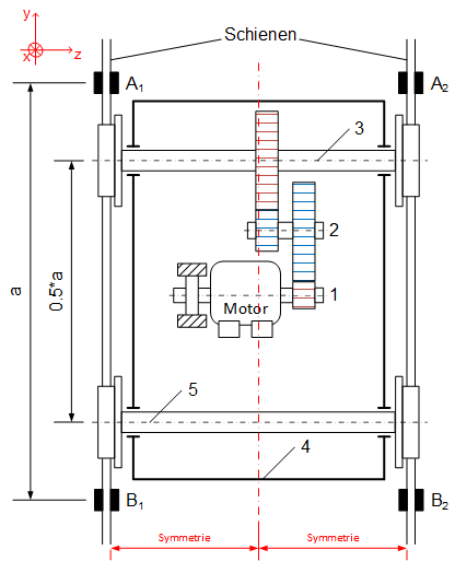
Legende Greiferlaufkatze (Draufsicht):

  • 1...Motorwelle
  • 2...Zwischenräder
  • 3...Antriebswelle des Getriebeblocks
  • 4...Getriebegehäuse
  • 5...Achse des Getriebeblocks

Annahmen

Die Masse mgetr=7,7[kg] des Getriebeblocks inklusive Motor und Gehäuse verteilt sich auf die Antriebswelle zu 70% und auf die Achse des Getriebeblocks zu 30%. Vereinfachend wird dabei angenommen, dass die Belastung auf beide Schienen gleich verteilt ist (Symmetrie entlang der y-Achse). Die Masse eines Rades mRad=8,3 [kg]. Die Masse der Achse mAch=4,9 [kg]. Die Masse der Welle mWel=4,5 [kg]. Annäherung: g=9,81m/s2.

A1, A2 sind jeweils mit der Schiene fix verschweißte Stützen. B1, B2 sind lose Stützen die lediglich senkrechte Kräfte aufnehmen können.

Modellieren Sie das Problem als Träger auf zwei Stützen und eruieren Sie die Auflagerkraft FA1x in [N] rechnerisch. Der Abstand a=18 [cm]. Der Wagen befindet sich in der Mitte zwischen den Stützen A1,2 und B1,2 und ist im Stillstand. Das Ergebnis ist mit zwei Nachkommastellen anzugeben.

View this question

Gegeben: F2=26kN; alpha2=4,28rad / Gesucht: F2y in [kN]

Rechnen Sie bitte mit 2 Nachkommastellen und wählen Sie die passende Einheit.

View this question

Gegeben: Auf einem Tisch mit vier Beinen befindet sich eine Last mit der Masse mLast=183[kg]. Die Last befindet sich genau in der Mitte des Tisches und ist symmetrisch gleich verteilt. Die Tischplatte hat eine Masse von mTischplatte=7[kg]. Ein Tischbein hat eine Masse mTischbein=5,6[kg]. Alle vier Tischbeine haben die gleiche Masse. Abstand a=102[cm]. Der Tisch befindet sich auf einem ebenen Boden.

Modellieren Sie das Problem als Träger auf zwei Stützen, wobei die Annahme gilt, dass, auf Grund der gegebenen Symmetrie, sowohl die Masse der Last als auch die Masse der Tischplatte in der Ebene, aufgespannt von jeweils zwei Tischbeinen wirkt. Außerdem wird angenommen, dass auf Grund der vollständig homogenen Verteilung aller Massen jedes der vier Tischbeine exakt gleich belastet ist. Die Erdbeschleunigung g wird angenähert mit g=9,81m/s2.

Gesucht: FBy in [kN] Das Ergebnis ist mit zwei Nachkommastellen anzugeben.

View this question

Hinweis: Steger / Sieghart / Glauninger, 4.  Aufl. 2009, Technische Mechanik 1, Seite 37

Gegeben: Ein Balken auf zwei Stützen ist durch die Kräfte F1=7,2N und F2=6,4N belastet. a=6,8mm; b=2mm; l=1,5mm

Gesucht: Auflagerkraft FAy (=FA) in [N]

  • Rechnen Sie bitte mit 2 Nachkommastellen und wählen Sie die passende Einheit aus.
  • Beachten Sie die in rot markierten positiven Achsrichtungen bzw. die positive Drehrichtung.

View this question

Gegeben: alpha=4,76rad Gesucht: alpha in [Grad]

Wieviel Grad (°) entspricht der gegebene Winkel alpha in Radiant (rad)?

  • Bitte geben Sie die Antwort mit einer Nachkommastelle an ohne dabei auf- bzw. abzurunden.

View this question
View this question
View this question

Want instant access to all verified answers on moodle.fh-vie.ac.at?

Get Unlimited Answers To Exam Questions - Install Crowdly Extension Now!

Browser

Add to Chrome