logo

Crowdly

Browser

Add to Chrome

Інженерна механіка (ММК)

Looking for Інженерна механіка (ММК) test answers and solutions? Browse our comprehensive collection of verified answers for Інженерна механіка (ММК) at op.tsatu.edu.ua.

Get instant access to accurate answers and detailed explanations for your course questions. Our community-driven platform helps students succeed!

Задано складний перетин, що складається з двох прямокутників. Позначимо верхній прямокутник №1, а нижній №2.

Чому дорівнюють координати центрів ваги прямокутників y1 та y2 в заданій системі координат xOy?
0%
0%
0%
0%
0%
0%
0%
0%
0%
0%
0%
0%
View this question
Задано стержень круглого поперечного перерізу

У яких перетинах даного стержня на епюрі N будуть скачки?
0%
0%
0%
0%
View this question
Задано стержень круглого поперечного перерізу

На яких ділянках епюри N для даного стержня будуть прямі паралельні базі епюри?
0%
0%
0%
View this question
Яка деформація називається пружною?
View this question
Задано ступінчастий стержень круглого поперечного перерізу з побудованою епюрою внутрішньої поздовжньої сили N.

Визначити, який переріз даного стержня найнебезпечніший.
0%
0%
0%
0%
View this question
Чому дорівнює полярний момент опору круглого перерізу?
0%
0%
0%
0%
View this question
Напруження, що позначаються в розрахунках на міцність [σ], називаються:
View this question
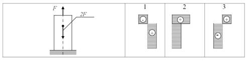
Вкажіть правильну епюру нормальної (поздовжньої) сили N без урахування власної ваги.

0%
0%
0%
View this question
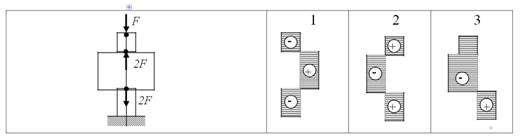
Вкажіть правильну епюру нормальної (поздовжньої) сили N без урахування власної ваги.

0%
0%
View this question
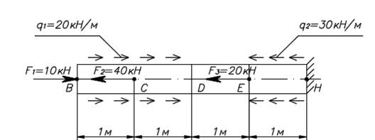
Вкажіть правильну епюру поперечної сили Q.

0%
0%
0%
View this question

Want instant access to all verified answers on op.tsatu.edu.ua?

Get Unlimited Answers To Exam Questions - Install Crowdly Extension Now!

Browser

Add to Chrome