logo

Crowdly

Browser

Add to Chrome

06-IIR-L-A2-S2: Componente mecanice tipizate (Seria BB - 2024)

Looking for 06-IIR-L-A2-S2: Componente mecanice tipizate (Seria BB - 2024) test answers and solutions? Browse our comprehensive collection of verified answers for 06-IIR-L-A2-S2: Componente mecanice tipizate (Seria BB - 2024) at curs.upb.ro.

Get instant access to accurate answers and detailed explanations for your course questions. Our community-driven platform helps students succeed!

Pentru solutiile de Surub -piulita cu bile din reprezentarile grafice de mai jos, in corespondenta cu litera din fata fiecarei figuri precizati:

1. tipul sistemului de recirculare a elementelor intermediare

1a. recirculare interna prin prin deflector de capat

1b. recirculare externa prin tevi

1c. recirculare interna prin capace de capat

1d. recirculare interna prin deflector 

2. tipul sistemului de pretensionare

2a. prin cresterea distantei dintre doua piulite

2b. prin reducerea distantei dintre doua piulite

2c. prin cresterea unui pas al elicei surubului in zona centrala a surubului

2d. prin micsorarea unui pas al elicei surubului in zona centrala a surubului

2e. prin cresterea unui pas al elicei piulitei in zona centrala a piulitei

2f. prin micsorarea unui pas al elicei piulitei in zona centrala a piulitei

A

B

0%
0%
0%
0%
0%
0%
0%
0%
0%
0%
0%
0%
0%
0%
0%
0%
0%
0%
0%
0%
View this question

Pentru ansamblurile partiale surub conducator - piulita cu bile prezentate in imaginile de mai jos selectati denumirea corecta a sistemului de pretensionare cu care sunt prevazute:

A

a. sistem de pretensionare prin variatia (reducerea) unui pas al elicei in zona

centrala a piulitei 

b. sistem de pretensionare prin variatia (reducerea) unui pas al elicei in zona centrala a surubului

c. sistem de pretensionare prin variatia (marirea) unui pas al elicei in zona centrala a piulitei 

d. sistem de pretensionare prin variatia (marirea) unui pas al elicei in zona centrala a surubului

e. sistem de pretensionare prin variatia (reducerea) distantei dintre doua piulite

f.  sistem de pretensionare prin variatia (cresterea) distantei dintre doua piulite  

0%
0%
0%
0%
0%
0%
0%
0%
0%
0%
0%
0%
0%
0%
0%
0%
0%
0%
View this question

Utilizand numerotarea elementelor componente ale unui ansamblu surub-piulita- lagare din figura de mai jos precizati:

a care este numarul de ordine al unui sistem de lagaruire de tip

a1. incastrare

a1.1 reper 3

a1.2 reper 4

a1.3 reper 7

a1.4 reper 8

a2. reazem / sprijin

a2.1 reper 3

a2.2 reper 4

a2.3 reper 7

a2.4 reper 8

b care este numarul de ordine al unui reper de tip piesa suport pentru montarea unei casete lagar 

b1. reper 3

b2. reper 4

b3. reper 7

b4. reper 8   

0%
0%
100%
0%
100%
0%
0%
0%
100%
0%
0%
0%
View this question

Pentru solutiile de surub - piulita cu bile din cele doua figuri, in corespondenta cu litera din fata fiecarei figuri, precizati ce tip de sistem de pretensionare este folosit la toate variantele de suruburi cu bile din imaginea A si respectiv ce tip de sistem de pretensionare este folosit la toate variantele de suruburi cu bile din imaginea B:

2a. prin reducerea distantei dintre doua piulite

2b. prin cresterea distantei dintre doua piulite

2c. prin cresterea unui pas al elicei surubului in zona centrala a surubului

2d. prin micsorarea unui pas al elicei surubului in zona centrala a surubului

2e. prin cresterea unui pas al elicei piulitei in zona centrala a piulitei

2f. prin micsorarea unui pas al elicei piulitei in zona centrala a piulitei

A

B

0%
0%
100%
0%
100%
0%
0%
0%
0%
0%
0%
0%
View this question

Pentru cele patru sisteme de recirculare din figurile de mai jos selectati denumirea corecta dintre optiunile listate in continuare:

A

a: sistem de recirculare interna prin tevi

b: sistem de recirculare externa prin tevi

c: sistem de recirculare cu canale axiale si capace

d. sistem de recirculare interna prin capace de capat

e. sistem de recirculare externa prin deflector

f. sistem de recirculare interna prin deflector

g. sistem de recirculare interna prin deflector de capat

h. sistem de recirculare externa prin deflector de capat si canale axiale

100%
0%
0%
0%
0%
0%
100%
0%
0%
0%
100%
0%
100%
0%
0%
0%
View this question

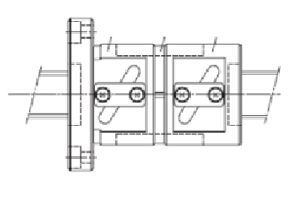
Pentru solutia constructiva de caseta lagar prezentata mai jos selectati denumirea corecta a elementelor componente numerotate in figura:

a piulita de strangere a rulmentilor pe corpul

surubului, 

b piulita de strangere a rulmentilor in corpul carcasei

c  corpul

surubului

d corpul casetei

e elemente de etansare,

f rulmenti radial – axiali cu simplu efect,

g inele distantiere

0%
0%
0%
0%
0%
0%
0%
0%
0%
0%
0%
0%
View this question

Pentru cele patru sisteme de recirculare din figurile de mai jos selectati denumirea corecta dintre optiunile listate in continuare:

a: sistem de recirculare interna prin tevi

b: sistem de recirculare externa prin tevi

c: sistem de recirculare cu canale axiale si capace

d. sistem de recirculare interna prin capace de capat

e. sistem de recirculare externa prin deflector

f. sistem de recirculare interna prin deflector

g. sistem de recirculare interna prin deflector de capat

h. sistem de recirculare externa prin deflector de capat si canale axiale

0%
0%
0%
0%
0%
100%
0%
0%
0%
0%
100%
0%
0%
100%
0%
100%
View this question

Cu referire la numarul de ordine din fata fiecarei figuri precizati de ce tip de cinematica a sistemul surub-piulita cu bile din fiecare figura:

a. cu surub rotitor si piulita in miscare de translatie

b. cu piulita rotitoare si surub in miscare de translatie 

1

0%
100%
0%
0%
100%
100%
100%
100%
0%
0%
View this question

Cu referire la numarul de ordine din fata fiecarei figuri, pentru fiecare figura in parte selectati perechea de variante corecte de raspuns la urmatoare intrebari (a, b):

a. ce sistem de recirculare are sistemul surub piulita cu bile din figura?

a1. recirculare externa prin tevi

a2. recirculare interna prin deflector

a3. recirculare interna prin deflector de capat

a4. recirculare interna prin capace de capat

 b. ce sistem de pretensionare are sistemul surub piulita cu bile din figura?

b1. prin variatia unui pas in zona centrala a piulitei

b2. prin departarea a doua piulite

b3. prin apropierea a doua piulite

b4. prin utilizarea alternativa a unor seturi de bile sortate in 2 clase dimensionale diferite

0%
0%
0%
0%
0%
0%
0%
0%
0%
0%
0%
0%
0%
0%
0%
0%
0%
0%
0%
0%
100%
0%
0%
0%
0%
100%
100%
0%
0%
0%
0%
0%
0%
0%
0%
0%
View this question

Pentru cele trei casete lagar pentru suruburi cu bile prezentate in figurile de mai jos, cu referire la liteza din fata fiecarei figuri precizati:

a care dintre casetele lagar permit materializarea unui punct de lagaruire de tip incastrare

a1 fig A

a2 fig B

a3 fig C

b care dintre casetele lagar permit materializarea unui punct de lagaruire de tip reazem / sprijin

b1 fig A

b2 fig B

b3 fig C

c care dintre casetele lagar consituie lagarul care permite cel mai mic unghi de inclinare in lagar a capatului surubului cu bile 

c1 fig A

c2 fig B

c3 fig C

d cate puncte de fixare a rulmentului / rulmentilor exista in fiecare caseta lagar

d1 pentru figura A

d1.1  1 punct de fixare

d1.2   2 puncte de fixare

d1.3   3 puncte de fixare

d1.4   4 puncte de fixare

d2 pentru figura B

d2.1  1 punct de fixare

d2.2   2 puncte de fixare

d2.3   3 puncte de fixare

d2.4   4 puncte de fixare

d3 pentru figura C

d3.1  1 punct de fixare

d3.2   2 puncte de fixare

d3.3   3 puncte de fixare

d3.4   4 puncte de fixare

A

B

C

0%
0%
0%
0%
0%
0%
0%
0%
0%
0%
0%
0%
0%
0%
0%
0%
0%
0%
0%
0%
0%
View this question

Want instant access to all verified answers on curs.upb.ro?

Get Unlimited Answers To Exam Questions - Install Crowdly Extension Now!

Browser

Add to Chrome